Tin Tức - Sự Kiện
Công ty cổ phần phát triển hạ tầng Vĩnh Phúc (VPID) khai xuân Bính Ngọ 2026 - Khởi động thịnh vượng - Mã đáo thành công!
Sáng ngày 22/02/2026 (mùng 6 âm lịch), trong không khí mùa xuân tươi mới, Công ty Cổ phần Phát triển hạ tầng Vĩnh Phúc (VPID) trang trọng tổ chức chương trình Khai Xuân với chủ đề “Khởi sắc – Bứt phá – Thành công” tại văn phòng trụ sở KCN Khai Quang và KCN Sông Lô II, đánh dấu thời khắc khởi đầu cho một năm đổi mới, tăng tốc và phát triển bền vững. VPID khai xuân Bính Ngọ 2026 - Khởi động thịnh vượng, mã đáo thành công! Theo truyền thống mỗi dịp xuân về, Chủ tịch Hội đồng quản trị và Tổng giám đốc Công ty đã gửi lời chúc năm mới đến toàn thể Cán bộ Nhân viên, đồng thời trao những bao lì xì đỏ thắm như lời chúc may mắn, khởi đầu hanh thông, tiếp thêm khí thế và niềm tin cho hành trình chinh phục mục tiêu năm 2026. (Ông) Trịnh Việt Dũng - Chủ tịch HĐQT gửi lời chúc mừng năm mới đến toàn thể CBNV Công ty (Bà) Nguyễn Ngọc Lan -TVHĐQT kiêm Tổng giám đốc gửi lời chúc mừng năm mới đến toàn thể CBNV Công ty Nghi thức nâng ly khai xuân mở lộc Ban lãnh đạo chụp ảnh cùng tập thể CBNV Công ty Tại KCN Khai Quang, Ban Lãnh đạo trực tiếp tham quan Nhà máy xử lý nước thải, ghi nhận công tác vận hành an toàn, ổn định, tuân thủ nghiêm quy định môi trường – nền tảng củng cố niềm tin của nhà đầu tư. Ban Lãnh đạo cùng đại diện các bộ phận trong Công ty trực tiếp tham quan & chúc Tết tại Nhà máy xử lý nước thải Hoạt động Tết trồng cây tại Lô CN17 (KCN Khai Quang) tiếp tục khẳng định định hướng phát triển khu công nghiệp xanh, hiện đại, bền vững. Hoạt động Tết trồng cây tại Lô CN17 (KCN Khai Quang) Hoạt động Tết trồng cây tại Lô CN17 (KCN Khai Quang) (Ông) Trịnh Việt Dũng - Chủ tịch HĐQT Công ty chúc tết và lì xì đầu năm cho CBNV Tổ cây xanh môi trường Ban lãnh đạo VPID chụp ảnh cùng CBNV Tổ cây xanh môi trường tại Lô CN17 (KCN Khai Quang) Tại KCN Sông Lô II, nhịp độ thi công nhanh chóng được khởi động trở lại với tinh thần khẩn trương, chuyên nghiệp, thể hiện cam kết hoàn thiện hạ tầng chất lượng – an toàn – đồng bộ, sẵn sàng bàn giao quỹ đất đúng tiến độ cam kết. Khai xuân tại Ban quản lý KCN Sông Lô II Khai xuân tại Ban quản lý KCN Sông Lô II Bước sang năm 2026, với khí thế mới và quyết tâm mới, VPID đã sẵn sàng một khởi đầu đầy hứng khởi, hứa hẹn một năm 2026 tăng trưởng mạnh mẽ, khẳng định vị thế nhà phát triển khu công nghiệp chuyên nghiệp và uy tín. Nhân dịp đầu xuân năm mới, Công ty trân trọng gửi tới Quý Khách hàng, Quý Đối tác lời chúc Sức khỏe – Thành công – Thịnh vượng, vững bước phát triển và tiếp tục đồng hành cùng chúng tôi trên hành trình kiến tạo những giá trị dài lâu. Bài & ảnh: VPID
Xây dựng khu công nghiệp Sông Lô II hiện đại thân thiện với môi trường
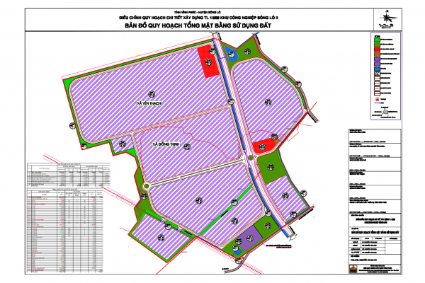
(Trích dẫn nguồn từ baoxaydung.com.vn) Dự án khu công nghiệp Sông Lô II được Thủ tướng Chính phủ phê duyệt chủ trương tại Quyết định số 229/QĐ-TTg ngày 23/2/2021 và được UBND tỉnh Vĩnh Phúc phê duyệt thành lập tại Quyết định số 600/QĐ-UBND ngày 11/3/2021. Khu công nghiệp Sông Lô II được xây dựng trên địa bàn xã Đồng Thịnh và xã Yên Thạch, huyện Sông Lô, với diện tích 165,65 ha. Tổng mức đầu tư của dự án hơn 1.500 tỷ đồng do Công ty Cổ phần Phát triển hạ tầng Vĩnh Phúc (VPID) làm chủ đầu tư. Đây là khu công nghiệp đầu tiên trên địa bàn huyện Sông Lô được triển khai xây dựng, với vị trí giao thương đắc địa với hệ thống giao thông thuận lợi, kết nối trực tiếp với sân bay Nội Bài và mạng lưới đường cao tốc quốc gia; kết nối cảng cạn quốc tế ICD Vĩnh Phúc… Từ khu công nghiệp Sông Lô II có thể dễ dàng kết nối với các tỉnh thuộc vùng kinh tế trọng điểm phía Bắc và các tỉnh lân cận. Do vậy, khu công nghiệp Sông Lô II có ý nghĩa quan trọng nhằm thu hút đầu tư, phát triển công nghiệp, góp phần thúc đẩy phát triển kinh tế - xã hội huyện Sông Lô nói riêng và tỉnh Vĩnh Phúc nói chung. Với sự vào cuộc quyết liệt của chính quyền huyện Sông Lô, chính quyền các xã có diện tích đất thu hồi thuộc dự án trong công tác tuyên truyền, vận động người dân trong công tác đền bù, giải phóng mặt bằng nên đa số người dân đồng thuận với chủ trương của dự án, nhận tiền bồi thường giải phóng mặt bằng và bàn giao đất sạch cho chủ đầu tư xây dựng hoàn thiện hạ tầng. Đến nay, diện tích đã phê duyệt chi trả bồi thường giải phóng mặt bằng là 159,5ha với kinh phí bồi thường, hỗ trợ là 478,43 tỷ đồng. Năm 2024, UBND tỉnh Vĩnh Phúc đã giao đất đợt 1 cho chủ đầu tư với diện tích 152,76ha. Gói thầu Nhà máy xử lý nước thải khu công nghiệp Sông Lô II, giai đoạn 1 đang được nhà thầu triển khai thi công. Diện tích đất còn lại cần phải giải phóng mặt bằng là 6,155ha, trong đó đã kiểm kê, kiểm đếm được 5,89ha chủ yếu là đất ở, đất vườn. Số hộ thuộc diện phải tái định cư để thực hiện dự án là 22 hộ. Tuy nhiên chưa có hạ tầng khu tái định cư nên chưa đủ điều kiện để phê duyệt phương án bồi thường và tái định cư cho 22 hộ trên. Trao đổi với phóng viên Báo Xây dựng, ông Nguyễn Tiến Dũng, Giám đốc Ban Quản lý dự án đầu tư xây dựng huyện Sông Lô cho biết: Trong thời gian tới, với sự chỉ đạo sát sao của Huyện uỷ, UBND huyện Sông Lô, Ban Quản lý dự án đầu tư xây dựng huyện sẽ tiếp tục phối hợp với các phòng liên quan, UBND các xã tiến hành kiểm kê, kiểm đếm phần diện tích còn lại; tuyên truyền, vận động 24 hộ dân gây cản trở thi công chấp hành bàn giao mặt bằng; bám sát các văn bản chỉ đạo, quy định về xác định giá đất bồi thường để từ đó có căn cứ lập phương án bồi thường giải phóng mặt bằng, công khai dự thảo phương án tới các hộ dân. Cùng với đó, đề nghị UBND tỉnh Vĩnh Phúc xem xét bố trí nguồn kinh phí để thực hiện giải phóng mặt bằng dự án Hạ tầng nghĩa trang nhân dân xã Đồng Thịnh, Yên Thạch phục vụ giải phóng mặt bằng khu công nghiệp Sông Lô II. Về hạ tầng khu công nghiệp, ngay sau khi được UBND tỉnh Vĩnh Phúc giao đất đợt 1 năm 2023, Công ty cổ phần Phát triển hạ tầng Vĩnh Phúc đã tập trung mọi nguồn lực triển khai thi công đồng bộ hạ tầng kỹ thuật và san nền để sớm có mặt bằng cho các nhà đầu tư thứ cấp thuê lại đất. Tuy nhiên do khó khăn về nguồn vật liệu đất đắp, cát nên các gói thầu thi công dự án đều bị chậm tiến độ so với kế hoạch đề ra. Các tuyến đường giao thông kết nối trong khu công nghiệp dân được hoàn thiện để thu hút đầu tư. Năm 2025, VPID tiếp tục tập trung triển khai thi công hạ tầng, san nền như: Các tuyến đường nội bộ; hệ thống thoát nước mưa, thoát nước thải; hoàn trả kênh tiêu; nhà điều hành; nhà máy xử lý nước thải; hệ thống điện động lực, điện chiếu sáng... nhằm hoàn thiện hạ tầng khu công nghiệp để thu hút đầu tư. Trong đó, gói thầu trọng điểm là Nhà máy xử lý nước thải khu công nghiệp Sông Lô II giai đoạn 1, với diện tích 1,8ha, công suất 3.000m3/ngàyđêm. Gói thầu được khởi công từ đầu tháng 3/2025. Nhà máy xử lý nước thải Sông Lô II sử dụng công nghệ SBR cải tiến tăng hiệu suất xử lý bằng hệ thống sục khí chìm. Dự kiến nhà máy xử lý nước thải khu công nghiệp Sông Lô II sẽ hoàn thành vào tháng 11/2025. Trao đổi với phóng viên Báo Xây dựng, ông Nguyễn Duy Hưng, Phó Ban Quản lý dự án khu công nghiệp Sông Lô II cho biết: Với định hướng phát triển khu công nghiệp Sông Lô II trở thành khu công nghiệp kiểu mẫu, với hạ tầng kỹ thuật hiện đại, thân thiện với môi trường, VPID sẽ ứng dụng công nghệ tiên tiến để kiến tạo hệ sinh thái xanh, đáp ứng tiêu chuẩn cao của các nhà đầu tư, đồng thời truyền cảm hứng cho các nhà đầu tư và người lao động khi làm việc tại đây. Cùng với đó, hệ thống hạ tầng kỹ thuật đồng bộ, hiện đại chính là điểm nhấn nổi trội của khu công nghiệp Sông Lô II. VPID sẽ đầu tư nhà máy xử lý nước thải sử dụng công nghệ hiện đại và hệ thống điện mặt trời để giúp tiết kiệm điện năng sản xuất một cách hiệu quả nhất. Khó khăn về nguồn vật liệu đất đắp, cát đã ảnh hưởng đến tiến độ thi công các gói thầu so với kế hoạch đề ra. Sau khi hoàn thành, khu công nghiệp Sông Lô II sẽ trở thành điểm sáng trong bức tranh kinh tế của huyện Sông Lô nói riêng và tỉnh Vĩnh Phúc nói chung, mang lại giá trị đích thực, hiện hữu cho các nhà đầu tư cũng như các doanh nghiệp đầu tư trong khu công nghiệp. Với định hướng đó, đến nay đã có 227 nhà đầu tư quan tâm, tìm hiểu để thuê đất tại dự án; trong đó có 38 nhà đầu tư có nhu cầu thuê từ 10 ha trở lên đến từ các nước và vùng lãnh thổ: Nhật Bản, Hàn Quốc, Đài Loan (Trung Quốc), Hồng Kông, Malaysia, Singapore, Trung Quốc, Việt Nam. Theo kế hoạch đến tháng 3/2026 VPID sẽ hoàn thiện hạ tầng đồng bộ để đủ điều kiện cho nhà đầu tư thứ cấp thuê đất giai đoạn 1 với diện tích khoảng 55ha Nguồn: Bích Huệ - Báo Xây dựng
VPID tổ chức thành công Đại hội đồng cổ đông thường niên năm 2026
Năm 2025 tình hình thế giới tiếp tục diễn biến phức tạp, khó lường, xung đột leo thang ở nhiều khu vực. Giá xăng dầu, cước vận tải biến động mạnh, thiên tai, biến đổi khí hậu, an ninh năng lượng diễn biến phức tạp đã ảnh hưởng đến hoạt động của các doanh nghiệp. Sáng ngày 11/01/2026, Công ty Cổ phần Phát triển Hạ tầng Vĩnh Phúc đã tổ chức thành công ĐHĐCĐ thường niên năm 2026 tại trụ sở công ty Sáng ngày 11/01/2026, tại trụ sở Công ty, VPID đã tổ chức thành công Đại hội đồng cổ đông thường niên năm 2026 với sự tham gia của: Các cổ đông tham dự trực tiếp và đại diện theo ủy quyền có tên trong danh sách cổ đông có quyền tham dự và biểu quyết tại cuộc họp Đại hội đồng cổ đông thường niên 2026 do Tổng Công ty lưu ký và bù trừ chứng khoán Việt Nam lập tại ngày đăng ký cuối cùng 09/12/2025. Đại hội đã biểu quyết thông qua Biên bản Đại hội và thông qua Nghị quyết Đại hội đồng cổ đông thường niên năm 2026 với sự nhất trí cao - Về phía Công ty, có sự hiện diện của: Ông Hoàng Đình Thắng - Chủ tịch HĐQT. Ông Trịnh Việt Dũng – Phó Chủ tịch HĐQT. Các thành viên HĐQT; các Ủy Ban, Tiểu Ban trực thuộc HĐQT. Bà Nguyễn Ngọc Lan – Thành viên HĐQT kiêm TGĐ Công ty Thành viên Ban Tổng Giám đốc Công ty Đại hội đã biểu quyết thông qua Biên bản Đại hội và thông qua Nghị quyết Đại hội đồng cổ đông thường niên năm 2026 với sự nhất trí cao, bao gồm các nội dung: Chương trình họp ĐHĐCĐ; Quy chế làm việc tại ĐHĐCĐ; Báo cáo của HĐQT về việc kết quả hoạt động kinh doanh năm tài chính 2025, Kế hoạch năm tài chính 2026. Báo cáo của Ban Tổng giám đốc về việc kết quả hoạt động kinh doanh năm tài chính 2025, Kế hoạch năm tài chính 2026. Báo cáo tài chính hợp nhất năm tài chính 2025 đã được kiểm toán tại ngày 30/9/2025. Báo cáo hoạt động của thành viên độc lập HĐQT trong Ủy Ban Kiểm toán. Tờ trình số: 01/2026/TTr-UBKT ngày 11/01/2026 về việc lựa chọn đơn vị kiểm toán BCTC năm tài chính 2026. Tờ trình số: 01/2026/TTr-HĐQT ngày 11/01/2026 về việc Phê duyệt phương án phân phối lợi nhuận sau thuế năm tài chính 2025 và phương án phân phối lợi nhuận sau thuế dự kiến năm tài chính 2026. Tờ trình số: Thông qua Tờ trình số: 02/2026/TTr-HĐQT ngày 11/01/2026 về việc mức kinh phí hoạt động của HĐQT, các Ủy ban trực thuộc HĐQT trong năm tài chính 2026. Tờ trình số: 03/2026/TTr-HĐQT ngày 11/01/2026 về việc phê duyệt phương án phát hành cổ phiếu trả cổ tức năm 2025. Tờ trình số: 04/2026/TTr-HĐQT ngày 11/01/2026 về việc Phê duyệt điều chỉnh Tổng mức đầu tư Dự án Đầu tư xây dựng và kinh doanh kết cấu hạ tầng kỹ thuật KCN Sông Lô II, xã Sông Lô, tỉnh Phú Thọ. Tờ trình số: 05/2026/TTr-HĐQT ngày 11/01/2026 về việc miễn nhiệm thành viên HĐQT, thành viên độc lập HĐQT và bầu bổ sung thành viên HĐQT, thành viên độc lập HĐQT nhiệm kỳ 2024-2028. Thông qua Tờ trình về việc miễn nhiệm thành viên HĐQT, thành viên độc lập HĐQT và bầu bổ sung thành viên HĐQT, thành viên độc lập HĐQT nhiệm kỳ 2024-2028. Sau hơn 3 giờ làm việc nghiêm túc, khẩn trương với tinh thần "Đoàn kết - Dân chủ” cùng ý thức trách nhiệm cao của từng đại biểu, Đại hội đồng cổ đông thường niên năm 2026 của Cty CPPT hạ tầng Vĩnh Phúc đã hoàn thành toàn bộ nội dung chương trình đề ra. Đại hội đã thảo luận sôi nổi, thẳng thắn, dân chủ và nhất trí cao, Đại Hội đã thông qua, phê duyệt toàn bộ Báo cáo, các Tờ trình; ban hành Biên bản, Nghị quyết Đại hội đồng cổ đông thường niên 2026. Mùa Xuân Bính Ngọ đang về, mang theo những điều tốt lành. Với quyết tâm mới, khí thế mới, với niềm tin tưởng sâu sắc vào sức mạnh, ý chí đoàn kết của toàn thể cán bộ và người lao động trong Công ty, Phấn đấu thực hiện tốt các chỉ tiêu mà Đại hội đồng cổ đông thường niên 2026 thông qua. Đại hội đồng cổ đông thường niên năm 2026 kết thúc thành công tốt đẹp trong không khí phấn khởi của toàn thể cổ đông và người được ủy quyền tham dự đại hội. Bài: Đỗ Giáp - Ảnh: Thu Hà
Thông tin Mời chào giá cạnh tranh (lựa chọn nhà thầu) Gói thầu xây lắp
Mời chào giá cạnh tranh (lựa chọn nhà thầu) gói thầu xây lắp hạng mục: Bổ sung đường ống nước thải uPVC D500 tuyến đường QH, T12 đến hố ga chảy vào hố bơm Module 1,2 nhà máy XLNT tập trung KCN Khai Quang. Chi tiết xem thư mời chào giá, các thông tin yêu cầu kèm hồ sơ thiết kế, khối lượng chào giá. Chi tiết: Thư mời chào giá Khối lượng mời chào giá Bản vẽ thiết kế
VPID tổ chức diễn tập Phương án ứng phó sự cố môi trường KCN Khai Quang năm 2024
Căn cứ quy định của pháp luật về BVMT và PCCC, với trách nhiệm là Chủ đầu tư KCN Khai Quang, nhằm nâng cao khả năng sẵn sàng ứng phó, xử lý đối với với sự cố môi trường, sự cố cháy xảy tại KCN Khai Quang, đồng thời nâng cao nhận thức trong công tác phòng ngừa các sự cố có thể xảy ra. Ngày 18/7/2024 vừa qua, Công ty Cổ phần phát triển hạ tầng Vĩnh Phúc (VPID) đã tổ chức buổi diễn tập phương án ứng phó sự cố môi trường KCN Khai Quang năm 2024. Tới dự buổi diễn tập có đại diện của: Sở Tài nguyên và Môi trường tỉnh Vĩnh Phúc, Ban chỉ huy Phòng chống thiên tai và tìm kiếm cứu nạn (PCTT&TKCN) thành phố Vĩnh Yên, Ban quản lý các KCN tỉnh Vĩnh Phúc, UBND phường Khai Quang, UBND xã Quất Lưu. Các đơn vị doanh nghiệp trong KCN như: Công ty TNHH BHFlex Vina, Công ty TNHH Chính xác Việt Nam 1 (VPIC1), Công ty TNHH UJU Vina, Công ty TNHH Heasung Vina, Công ty TNHH AMO Vina cùng toàn thể CBNV và lực lượng tham gia diễn tập của Công ty Cổ phần phát triển hạ tầng Vĩnh Phúc. Diễn tập phương án ứng phó sự cố môi trường KCN Khai Quang năm 2024 Nguyên nhân của sự cố được xác định là do xe vận chuyển có chứa nhiên liệu (dầu Diezel) không được chốt khoá cẩn thận di chuyển trên tuyến đường QH thì xảy ra va chạm làm đổ phi chứa dầu xuống đường, dẫn đến dầu chảy tràn trên lòng đường. Do va chạm tạo ma sát với mặt đường làm phát sinh tia lửa và gây cháy. Ngay sau khi sự cố xảy ra, nhân viên Tổ giám sát và ứng phó sự cố môi trường (GS&ƯPSCMT) trong quá trình đi tuần tra, kiểm soát môi trường đã phát hiện sự cố, lập tức gọi điện báo cho Tổ trưởng tổ GS&ƯPSCMT xin ý kiến chỉ đạo đồng thời huy động nhân sự tại chỗ là nhân viên trong ca trực tại nhà máy XLNT ra hỗ trợ. Sau khi nhận được thông tin, tổ trưởng Tổ GS&ƯPSCMT báo cáo Ban lãnh đạo (BLĐ) công ty và xin huy động các lực lượng tham gia ứng phó. BLĐ đồng ý cho huy động các tổ đội phòng ban liên quan và triển khai thực hiện công tác ứng phó sự cố đảm bảo khẩn trương và an toàn Diễn tập phương án ứng phó sự cố môi trường KCN Khai Quang năm 2024 Sau khi đám cháy được kiểm soát, Đội ứng phó sự cố môi trường và đội PCCC&CHCN chuyên ngành KCN phối hợp di chuyển các vật tư, thiết bị ra vị trí an toàn. Đội ứng phó sự cố môi trường hoàn thiện các công việc cuối cùng trong công tác khắc phục sự cố. Các vật tư, vật liệu sử dụng đã dính dầu được thu gom vào thùng chứa và đưa về kho lưu trữ chất thải nguy hại của công ty để chuyển giao cho đơn vị có đủ chức năng xử lý theo quy định. Hình ảnh các bộ phận liên quan đang dọn dẹp, khắc phục sự cố. Sau 15 phút , bằng sự cố gắng và nỗ lực của các lực lượng liên quan, sự cố đám cháy và sự cố môi trường đã được khắc phục hoàn toàn triệt để. Những ý kiến đóng góp của các đơn vị, thành viên trong buổi họp rút kinh nghiệm sẽ giúp Công ty Cố phần phát triển hạ tầng Vĩnh Phúc hoàn thiện hơn về phương án ứng phó sự cố môi trường và sự cố cháy tại Khu công nghiệp. Dưới đây là video diễn tập thực tế:
|Thông báo về việc ứng cử, đề cử thành viên Hội đồng quản trị nhiệm kỳ 5 (2024 – 2028)
Căn cứ Luật Doanh nghiệp số 59/2020/QH14 được Quốc Hội nước CHXHCN Việt Nam thông qua ngày 17/06/2020; Căn cứ Điều lệ tổ chức và hoạt động Công ty Cổ phần Phát triển hạ tầng Vĩnh Phúc; Căn cứ Quy chế nội bộ về quản trị Công ty Cổ phần Phát triển hạ tầng Vĩnh Phúc; Theo quy định của pháp luật, Công ty Cổ phần Phát triển hạ tầng Vĩnh Phúc sẽ tiến hành bầu Hội đồng quản trị (HĐQT) nhiệm kỳ 5 (2024 – 2028) tại phiên họp ĐHĐCĐ thường niên năm 2024 do HĐQT hiện tại hết nhiệm kỳ. Để đảm bảo tính khách quan và tuân thủ các quy định của pháp luật hiện hành về cơ cấu tổ chức HĐQT của công ty cổ phần, đồng thời tăng cường năng lực quản trị và kiểm soát của Công ty trong nhiệm kỳ mới, HĐQT Công ty Cổ phần Phát triển hạ tầng Vĩnh Phúc thông báo đến Quý cổ đông về việc tham gia ứng cử, đề cử nhân sự để bầu vào HĐQT tại kỳ họp ĐHĐCĐ thường niên năm 2024 như sau: Xem chi tiết
VPID tham gia diễn tập thành công phương án phòng thủ dân sự về ứng phó thảm họa cháy lớn tại khu công nghiệp
Ngày 31/10, Đội PCCC&CHCN chuyên ngành KCN Khai Quang tham gia diễn tập phương án phòng thủ dân sự về ứng phó thảm họa cháy lớn khu công nghiệp tại Công ty TNHH Sản xuất hàng may mặc Việt Nam (Khu công nghiệp Bá Thiện II, xã Thiện Kế, huyện Bình Xuyên). Phó Chủ tịch UBND tỉnh Vũ Chí Giang phát biểu khai mạc diễn tập. Ảnh: Dương Hà Tình huống giả định được đưa ra, vào hồi 9 giờ 00 phút, ngày X/Y/Z, tại Công ty TNHH Sản xuất hàng may mặc Việt Nam các hoạt động sản xuất đang diễn ra bình thường. Trong lúc cán bộ, công nhân viên công ty đang làm việc thì một cơn dông kèm sét đột ngột đánh vào nhà máy. Hệ thống chống sét đang bảo trì nên sét đánh làm chập hệ thống điện gây cháy tại gara xe tầng 1 và tầng 3 nhà chuyên gia. Các tình huống tai nạn giả định được đặt ra, nội dung diễn tập thực binh được triển khai theo 5 giai đoạn và rút ngắn các hoạt động so với thực tế. Lực lượng PCCC tại chỗ, dân phòng, chuyên ngành và PCCC chuyên nghiệp phối hợp với nhau trong công tác chữa cháy và cứu nạn, cứu hộ… Xe chữa cháy của đội PCCC&CHCN chuyên ngành KCN Khai Quang tham gia diễn tập Đội hình PCCC&CHCN của VPID tham gia diễn tập tại giai đoạn 4 trong phương án diễn tập với phương án sử dụng đội hình 01 lăng B kết nối 3 chạc sau đó lấy nước từ xe chữa cháy phun nước làm mát, ngăn chặn cháy lan và làm giảm nồng độ khói tại khu vực nhà kho. Đội hình bơm lăng giá phun nước làm mát, ngăn chặn cháy lan và làm giảm nồng độ khói tại khu vực nhà kho Các thành viên đội PCCC&CHCN chuyên ngành KCN Khai Quang tham gia diễn tập Với sự phối hợp nhịp nhàng giữa các lực lượng, cuộc diễn tập phương án phòng thủ dân sự về ứng phó với thảm họa cháy lớn đã diễn ra thành công. Ban Tổ chức và các tập thể, cá nhân có liên quan tiến hành tổ chức họp rút kinh nghiệm, đánh giá hiệu quả công tác diễn tập. Đồng thời, UBND tỉnh, Ban Chỉ đạo diễn tập tỉnh đã khen thưởng các tập thể, cá nhân có thành tích xuất sắc trong công tác diễn tập phương án phòng thủ dân sự về ứng phó với thảm họa cháy lớn tại Công ty TNHH Sản xuất hàng may mặc Việt Nam. Đồng chí Lương Văn Hưng - Đội viên Đội PCCC&CNCH chuyên nghành KCN Khai Quang nhận bằng khen tại buổi diễn tập (thứ 3 từ trái sang) Đây là dịp để Đội PCCC&CHCN chuyên ngành KCN Khai Quang hoàn thiện cơ chế tiếp nhận thông tin chỉ huy, hoàn thiện công tác phối hợp giữa các lực lượng trong và ngoài địa bàn tỉnh tham gia giải quyết sự cố, cháy, nổ lớn ở các cơ sở trọng điểm nói chung và khu công nghiệp nói riêng. Video diễn tập: Nguồn: Báo Vĩnh Phúc
Dự án KCN Sông Lô II sẽ bàn giao mặt bằng cho Nhà đầu tư thứ cấp vào đầu năm 2024
Ngày 25/6/2023 tại Khu công nghiệp (KCN) Sông Lô II, tỉnh Vĩnh Phúc, Công ty Cổ phần Phát triển hạ tầng Vĩnh Phúc (VPID) đã tổ chức thành công Lễ khởi công KCN Sông Lô II có quy mô 165,65 ha, với tổng vốn đầu tư 1.520 tỷ đồng. Dự Lễ khởi công KCN Sông Lô II có Ông Lê Duy Thành, Phó Bí thư Tỉnh ủy, Chủ tịch UBND tỉnh Vĩnh Phúc; ông Nguyễn Bá Hiến, Bí thư Huyện ủy huyện Sông Lô; ông Hà Đình Nhã, Trưởng Ban Quản lý các KCN Vĩnh Phúc; ông Trịnh Việt Dũng, Chủ tịch Hội đồng quản trị VPID; lãnh đạo các sở, ban, ngành chức năng trong Tỉnh; UBND huyện Sông Lô và các xã trong vùng Dự án; các nhà đầu tư, khách hàng, đối tác của VPID; đại diện các cơ quan thông tấn, báo chí ở Trung ương và địa phương đến dự và đưa tin. Ông Lê Duy Thành, Phó Bí thư Tỉnh ủy, Chủ tịch UBND tỉnh Vĩnh Phúc tham dự và phát biểu chỉ đạo tại Lễ khởi công. Chương trình Lễ khởi công tại KCN Sông Lô II diễn ra trang trọng và thành công tốt đẹp, đã đánh dấu một khởi đầu ấn tượng, hứa hẹn về sự thành công của Dự án trong tương lai. Sự kiện nhận được sự quan tâm, ghi nhận và truyền tin của các cơ quan báo đài Trung ương và địa phương. Các đại biểu về sự Lễ khởi công cùng Chủ đầu tư nhấn nút khởi công Dự án KCN Sông lô II VPID cam kết tập trung mọi nguồn lực triển khai đầu tư thành công KCN Sông Lô II Sau thành công của Lễ khởi công, cùng với kinh nghiệm đầu tư hạ tầng của nhiều dự án KCN trong tỉnh Vĩnh Phúc và một số tỉnh thành phía Bắc như: Hà Nam, Hải Dương, VPID cam kết sẽ tập trung mọi nguồn lực để triển khai đầu tư và hoàn thành theo đúng tiến độ kế hoạch đề ra. Ngày 23/06/2023, Công ty được Ủy ban Nhân dân tỉnh Vĩnh Phúc giao đất để thực hiện dự án (Đợt 1) với diện tích đất được giao: 152,76 ha, trong đó diện tích đất công nghiệp là 111,57 ha. Phối cảnh tổng thể dự án Khu công nghiệp Sông Lô II Trong quá trình thực hiện Dự án, VPID đảm bảo tuân thủ nghiêm theo các quy định của pháp luật về phòng cháy chữa cháy, xây dựng; tập trung nguồn lực tối đa và lựa chọn nhà thầu có năng lực, kinh nghiệm để triển khai đạt chất lượng và đúng tiến độ đề ra; giám sát các nhà thầu thi công xây dựng đảm bảo an toàn lao động và vệ sinh môi trường. Quá trình thi công xây dựng, Dự án tuyệt đối không ảnh hưởng đến đời sống, sinh hoạt của nhân dân khu vực xung quanh. Hiện tại, VPID đang hợp tác cùng đơn vị nhà thầu, tập trung hoàn thành giải phóng mặt bằng diện tích đất thu hồi đợt 1 của Dự án; từng bước tiến hành thi công hạ tầng gồm các hạng mục chính như: Thi công Nhà máy xử lý nước thải tập trung và hồ sự cố; mương thoát nước, hệ thống thu gom nước thải; điện chiếu sáng; hệ thống cấp nước, cấp điện; trồng cây xanh…. KCN Sông Lô II sẽ ứng dụng công nghệ tiên tiến để kiến tạo hệ sinh thái xanh. Hệ thống hạ tầng kỹ thuật đồng bộ, công nghệ xử lý nước thải hiện đại và hệ thống điện mặt trời giúp tiết kiệm điện năng sản xuất một cách hiệu quả nhất. Hệ thống điện mặt trời giúp tiết kiệm điện năng sản xuất một cách hiệu quả là điểm nhấn của khu công nghiệp Sông Lô II KCN SÔNG LÔ II dự kiến bàn giao đất cho Doanh nghiệp vào đầu năm 2024 KCN Sông Lô II cho các nhà đầu tư thứ cấp thuê lại đất gắn với hạ tầng dự kiến bắt đầu từ tháng 3 năm 2024 với ngành nghề thu hút đầu tư đa dạng: Công nghiệp cơ khí, công nghiệp điện tử, công nghiệp thiết bị điện, vật liệu xây dựng và công nghiệp nhẹ, Công nghiệp chế biến chế tạo… Khi Dự án hoàn thành, đi vào hoạt động sẽ đáp ứng nhu cầu tiếp nhận các dự án lớn về công nghiệp, nhằm phát huy tiềm năng thuận lợi về vị trí địa lý – kinh tế của khu vực. Dự án dự kiến sẽ tạo việc làm cho khoảng 13.500 lao động và đóng góp lớn cho ngân sách nhà nước thông qua nguồn thu thuế từ các dự án đầu tư trong KCN. Đến với KCN Sông Lô II, nhà đầu tư sẽ được hỗ trợ tuyển dụng và đào tạo nguồn nhân lực chất lượng cao Đến với KCN Sông Lô II, nhà đầu tư sẽ được hỗ trợ miễn phí các thủ tục pháp lý liên quan đến việc lập hồ sơ dự án đầu tư, xin cấp Giấy chứng nhận đăng ký đầu tư, Giấy chứng nhận đăng ký doanh nghiệp; hỗ trợ thiết kế và thi công theo yêu cầu cùng với rất nhiều chính sách ưu đãi về giá thuê, các loại thuế; hỗ trợ tuyển dụng và đào tạo nguồn nhân lực chất lượng cao.VPID cam kết đồng hành cùng nhà đầu tư, xây dựng KCN Sông Lô II trở thành KCN hiện đại, đạt tiêu chuẩn quốc tế, phát triển bền vững, hài hòa và bảo vệ môi trường; góp phần tích cực vào sự phát triển nền kinh tế Việt Nam, thúc đẩy tiến trình công nghiệp hóa đất nước. Mặt bằng quy hoạch Khu công nghiệp Sông Lô II, huyện Sông Lô, tỉnh Vĩnh Phúc Bài: Đỗ Giáp - Ngọc Hiền
VPID tổ chức thành công Lễ khởi công Khu công nghiệp Sông Lô II với tổng mức đầu tư hơn 1.500 tỷ đồng
Ngày 25/6/2023 tại Khu công nghiệp (KCN) Sông Lô II, tỉnh Vĩnh Phúc, Công ty Cổ phần Phát triển hạ tầng Vĩnh Phúc (VPID) đã tổ chức thành công Lễ khởi công KCN Sông Lô II có quy mô 165,65 ha, với tổng vốn đầu tư 1.520 tỷ đồng. Ông Lê Duy Thành, Phó Bí thư Tỉnh ủy, Chủ tịch UBND tỉnh Vĩnh Phúc tham dự và phát biểu chỉ đạo tại Lễ khởi công. Dự Lễ khởi công KCN Sông Lô II còn có ông Nguyễn Bá Hiến, Bí thư Huyện ủy huyện Sông Lô; ông Hà Đình Nhã, Trưởng Ban Quản lý các KCN Vĩnh Phúc; ông Trịnh Việt Dũng, Chủ tịch Hội đồng quản trị VPID; lãnh đạo các sở, ban, ngành chức năng trong Tỉnh; UBND huyện Sông Lô và các xã trong vùng Dự án; các nhà đầu tư, khách hàng, đối tác của VPID; đại diện các cơ quan thông tấn, báo chí ở Trung ương và địa phương đến dự và đưa tin Ông Lê Duy Thành, Phó Bí thư Tỉnh ủy, Chủ tịch UBND tỉnh Vĩnh Phúc tham dự và phát biểu chỉ đạo tại Lễ khởi công Khu công nghiệp Sông Lô II được xây dựng trên địa bàn xã Đồng Thịnh và xã Yên Thạch, huyện Sông Lô, với diện tích 165,65ha. Tổng mức đầu tư của dự án hơn 1.500 tỷ đồng. Dự án Khu công nghiệp Sông Lô II được Thủ tướng Chính phủ phê duyệt chủ trương tại Quyết định số 229/QĐ-TTg ngày 23/2/2021 và được UBND tỉnh Vĩnh Phúc phê duyệt thành lập tại Quyết định số 600/QĐ-UBND ngày 11/3/2021. Chủ đầu tư Khu công nghiệp là Công ty Cổ phần Phát triển hạ tầng Vĩnh Phúc, một doanh nghiệp tiên phong trong lĩnh vực đầu tư xây dựng và kinh doanh hạ tầng khu công nghiệp. Bản phối cảnh tổng thể KCN Sông Lô 2 Phát biểu khai mạc Lễ khởi công KCN Sông Lô II, thay mặt Ban lãnh đạo VPID, ông Phạm Trung Kiên, Tổng Giám đốc Công ty bảy tỏ lời cảm ơn sâu sắc tới lãnh đạo UBND tỉnh Vĩnh Phúc và các sở, ban, ngành chức năng trong Tỉnh, chính quyền huyện Sông Lô và chính quyền địa phương các cấp đã vào cuộc quyết liệt giúp VPID tháo gỡ các khó khăn, vướng mắc trong quá trình hoàn thiện các thủ tục pháp lý và triển khai đầu tư dự án KCN Sông Lô II; các đối tác, khách hàng đang và sẽ hỗ trợ VPID trong suốt quá quá trình triển khai Dự án; các cơ quan thông tấn, báo chí ở Trung ương và địa phương đã luôn đồng hành, đưa tin, thấu hiểu và chia sẻ cùng VPID trong suốt chặng đường phát triển. Ông Phạm Trung Kiên, Tổng Giám đốc Công ty cổ phần phát triển hạ tầng Vĩnh Phúc phát biểu khai mạc Lễ khởi công Phát biểu tại buổi lễ, ông Lê Duy Thành, Chủ tịch UBND tỉnh Vĩnh Phúc cho biết: “KCN Sông Lô II là KCN được khởi công đầu tiên tại huyện Sông Lô. Để dự án hoàn thành các thủ tục pháp lý, tổ chức khởi công hôm nay; ngoài tinh thần khẩn trương, sự nỗ lực, tích cực của nhà đầu tư; các Sở, ban, ngành của tỉnh, chính quyền địa phương còn có sự đồng tình ủng hộ của người dân các xã Đồng Thịnh, Yên Thạch, nhất là của người dân bàn giao đất để dự án được triển khai. Thay mặt lãnh đạo UBND tỉnh, tôi ghi nhận và biểu dương những nỗ lực của chủ đầu tư, các Sở, ban, ngành của tỉnh, chính quyền địa phương và đặc biệt là sự đồng tình, ủng hộ của người dân địa phương để dự án được khởi công hôm nay”. Ông Lê Duy Thành, Phó Bí thư Tỉnh ủy, Chủ tịch UBND tỉnh Vĩnh Phúc tham dự và phát biểu chỉ đạo tại Lễ khởi công. KCN Sông Lô II sẽ ứng dụng công nghệ tiên tiến để kiến tạo hệ sinh thái xanh, đáp ứng tiêu chuẩn cao của các nhà đầu tư, đồng thời truyền cảm hứng cho các nhà đầu tư và người lao động khi làm việc tại đây. Hệ thống hạ tầng kỹ thuật đồng bộ, công nghệ xử lý nước thải hiện đại và hệ thống điện mặt trời giúp tiết kiệm điện năng sản xuất một cách hiệu quả nhất sẽ là điểm nhấn của khu công nghiệp. Hệ thống điện mặt trời giúp tiết kiệm điện năng sản xuất sẽ là điểm nhấn của khu công nghiệp Sau khi hoàn thành, KCN Sông Lô II sẽ trở thành điểm sáng trong bức tranh kinh tế của huyện Sông Lô nói riêng và tỉnh Vĩnh Phúc nói chung, cũng như của đất nước, mang lại giá trị đích thực, hiện hữu cho các nhà đầu tư cũng như các doanh nghiệp. MỘT SỐ HÌNH ẢNH VPID CHỤP ẢNH LƯU NIỆM CÙNG CÁC ĐỐI TÁC, KHÁCH HÀNG CHÚC MỪNG LỄ KHỞI CÔNG KCN SÔNG LÔ II THÀNH CÔNG TỐT ĐẸP Các đại biểu về sự Lễ khởi công cùng Chủ đầu tư nhấn nút khởi công Dự án KCN Sông lô II Ông Lê Duy Thành (bên phải), Phó Bí thư Tỉnh ủy, Chủ tịch UBND tỉnh Vĩnh Phúc tặng hoa chúc mừng VPID tổ chức Lễ khởi công KCN Sông Lô II BQL các KCN tỉnh Vĩnh Phúc tặng hoa chúc mừng Lễ khởi công Huyện ủy - HĐND - UBND - UBMTTQ huyện Sông Lô tặng hoa chúc mừng Ông Lê Duy Thành , Phó Bí thư Tỉnh ủy, Chủ tịch UBND tỉnh Vĩnh Phúc chúc mừng VPID tổ chức Lễ khởi công KCN Sông Lô II Đón tiếp các đại biểu về dự Lễ khởi công Đón tiếp các đại biểu về dự Lễ khởi công Ông Hoàng Đình Thắng - Ủy viên Đoàn chủ tịch, Ủy ban trung ương MTTQVN, Chủ tịch Liên hiệp các Hội người VN tại châu Âu, Phó Chủ tịch HĐQT Công ty cổ phần phát triển hạ tầng Vĩnh Phúc phát biểu Đại diện Chủ đầu tư và các đối tác chụp ảnh lưu niệm Ban lãnh đạo Công ty cổ phần phát triển hạ tầng Vĩnh Phúc Toàn cảnh Lễ khởi công CBCNV VPID chụp ảnh lưu niệm Tập thể CBCNV VPID tham dự Lễ khởi công KCN Sông Lô II Bài: Đỗ Giáp - Ảnh: VPID
VPID nhận Quyết định của UBND tỉnh Vĩnh Phúc về việc giao đất Dự án KCN Sông Lô II
Sau hai năm thực hiện các thủ tục pháp lý thành lập KCN Sông Lô 2, song song tiến hành hết sức khẩn trương công tác đền bù giải phóng mặt bằng, đến nay dự án KCN Sông Lô 2 đã được UBND tỉnh Vĩnh Phúc ban hành quyết định giao đất để công ty thực hiện các bước đầu tư xây dựng hạ tầng KCN, theo đó diện tích đất được giao đợt 1 là 152,76ha/165,65ha đất quy hoạch khu công nghiệp Sông Lô 2 (đạt 92,22%). Diện tích đất còn lại sẽ tiếp tục giải phóng mặt bằng để xin giao vào đợt 2 trong năm 2023 Bản vẽ phối cảnh tổng thể KCN Sông Lô II Ngày 25/6/2023 Công ty phối hợp với UBND tỉnh Vĩnh Phúc và các cấp chính quyền địa phương chính thức long trọng tổ chức lễ khởi công xây dựng KCN Sông Lô 2, dự kiến cuối năm 2023 có thể cho các nhà đầu tư thứ cấp thuê lại đất thực hiện các dự án sản xuất kinh doanh, tạo việc làm cho hàng vạn lao động, đóng góp nguồn thu vào ngân sách tỉnh Vĩnh Phúc, góp phần chuyển đổi cơ cấu sử dụng đất, phát triển kinh tế đia phương. Lễ khởi công KCN Sông Lô II Với vị trí quy hoạch thuận lợi, KCN Sông Lô 2 cách nút giao Văn Quán đường cao tốc Nội Bài - Lào Cai 5km, cách sân bay quốc tế Nội Bài 50km, cách trung tâm thành phố Hà Nội 75km, cách cảng Hải Phòng 180km, cách thành phố Vĩnh Yên 25km sẽ là điểm đến hấp dẫn đối với các nhà đầu tư trong và ngoài nước. Công ty cam kết sẽ tạo điều kiện thuận lợi nhất, cung cấp dịch vụ tốt nhất với mức giá cho thuê lại đất hợp lý nhất cho các doanh nghiệp đầu tư vào KCN Sông Lô 2 để xây dựng nhà máy sản xuất kinh doanh đạt hiệu quả cao nhất. Chi tiết Quyết định số 1384/QĐ-UBND của UBND tỉnh Vĩnh Phúc về việc giao đất cho Công ty cổ phần phát triển hạ tầng Vĩnh Phúc thực hiện dự án đầu tư xây dựng và kinh doanh kết cấu hạ tầng kỹ thuật Khu công nghiệp Sông Lô II, huyện Sông Lô, tỉnh Vĩnh Phúc. Bài: Đỗ Giáp - Ảnh: VPID
VPID tổ chức thành công Đại hội đồng cổ đông thường niên năm 2023
Năm 2022, tình hình kinh tế thế giới có nhiều biến động, lạm phát tăng cao, giá xăng dầu, nguyên vật liệu biến động mạnh, ảnh hưởng đến nhiều ngành, lĩnh vực. Là doanh nghiệp hoạt động chủ yếu trong lĩnh vực kinh doanh bất động sản khu công nghiệp. Nền kinh tế biến động mạnh mẽ đã ảnh hưởng đến quá trình đầu tư, thi công xây dựng cơ sở hạ tầng, thu hút đầu tư của công ty. Tuy nhiên, với những lợi thế về vốn, kinh nghiệm thực tiễn, hoạt động của Công ty vẫn đạt được một số điểm tích cực đáng ghi nhận. Sáng ngày 08/01/2023, tại trụ sở Công ty, VPID đã tổ chức thành công Đại hội đồng cổ đông thường niên năm 2023 với sự tham gia của: Các cổ đông tham dự trực tiếp và đại diện của các cổ đông có quyền tham dự và biểu quyết tại cuộc họp thường niên 2023 được chốt ngày 07/12/2022. Đại hội đồng cổ đông thường niên 2023 Công ty cổ phần phát triển hạ tầng Vĩnh Phúc (VPID) Về phía Công ty có sự tham dự của: Ông Trịnh Việt Dũng – Chủ tịch HĐQT Ông Phạm Trung Kiên – Tổng giám đốc Quý vị thành viên HĐQT và các thành viên ủy ban trực thuộc HĐQT Thành viên Ban Tổng Giám đốc. Đại hội đã biểu quyết thông qua Biên bản Đại hội và thông qua Nghị quyết Đại hội đồng cổ đông thường niên năm 2023 với sự nhất trí cao, bao gồm các nội dung: Thông qua Báo cáo kết quả hoạt động năm 2022 và kế hoạch hoạt động năm 2023. Báo cáo tài chính hợp nhất đã kiểm toán năm 2022 (tóm tắt). Báo cáo hoạt động của thành viên độc lập HĐQT trong UBKT. Tờ trình về việc lựa chọn đơn vị kiểm toán BCTC năm 2023. Tờ trình về việc phê duyệt mức phân phối LNST năm tài chính 2022, mức dự kiến phân phối LNST năm tài chính 2023. Tờ trình về mức kinh phí hoạt động của HĐQT, các Ủy Ban trực thuộc HĐQT trong năm tài chính 2023. Tờ trình về việc sửa đổi, bổ sung Điều lệ, Quy chế nội bộ về quản trị Công ty. Tờ trình về việc sửa đổi, bổ sung Ngành nghề kinh doanh. Tờ trình về việc phương án phát hành cổ phiếu trả cổ tức năm 2022. Tờ trình về việc phương án phát hành cổ phiếu theo chương trình lựa chọn cho người lao động trong Công ty (ESOP 2023). Đại hội đồng cổ đông thường niên 2023 Công ty cổ phần phát triển hạ tầng Vĩnh Phúc (VPID) Năm 2023, hoạt động kinh doanh kết cấu hạ tầng KCN sẽ cạnh tranh khốc liệt và tiếp tục gặp khó khăn bởi những biến động của nền kinh tế trên toàn cầu hiện nay. Toàn thể CBCNV Công ty và các đơn vị trực thuộc quyết tâm đoàn kết, nỗ lực, tập trung thực hiện kế hoạch kinh doanh theo Nghị quyết của ĐHĐCĐ và HĐQT giao.Triển khai các giải pháp trọng tâm, phù hợp và linh hoạt, phát huy hết các tiềm năng sẵn có của Công ty để hoàn thành xuất sắc kế hoạch kinh doanh năm 2023. Bài: Đỗ Giáp - Ảnh: Thu Hà
Lễ ký kết thỏa thuận hợp tác toàn diện và hợp đồng tín dụng tài trợ dự án Khu công nghiệp (KCN) Sông Lô II trị giá 1.000 tỷ đồng
Ngày 03/11/2021, tại Hà Nội đã diễn ra Lễ ký kết Thỏa thuận hợp tác toàn diện và Hợp đồng tín dụng tài trợ dự án Khu công nghiệp (KCN) Sông Lô II trị giá 1.000 tỷ đồng giữa Ngân hàng TMCP Ngoại thương Việt Nam - Chi nhánh Thanh Xuân (Vietcombank Thanh Xuân) và Công ty CP Phát triển hạ tầng Vĩnh Phúc (VPID). Tham dự Lễ ký kết, về phía VPID có sự hiện diện của ông Trịnh Việt Dũng – Chủ tịch Hội đồng quản trị; ông Phạm Trung Kiên – Tổng Giám đốc; ông Lê Tùng Sơn – Thành viên Hội đồng quản trị; bà Nguyễn Ngọc Lan – Thành viên Hội đồng quản trị, Phó Tổng Giám đốc; bà Nguyễn Thị Hoàn – Kế toán trưởng và các ông/bà đại diện các phòng ban VPID . Về phía Vietcombank có ông Lê Quang Vinh – Phó Tổng Giám đốc; Trưởng các phòng/ban Trung tâm tại TSC; ông Lê Huy Hoàng - Giám đốc Vietcombank Thanh Xuân và ông Bạch Thành Long – Giám đốc Vietcombank Hà Nam. Công ty CP Phát triển Hạ tầng Vĩnh Phúc (mã CK: IDV) được thành lập từ năm 2003, trải qua gần 20 năm hoạt động và phát triển, VPID được biết đến là doanh nghiệp tiên phong, có năng lực, kinh nghiệm, uy tín trong lĩnh vực quản lý, đầu tư, kinh doanh hạ tầng Khu công nghiệp trên địa bàn tỉnh Vĩnh Phúc nói riêng và khu vực miền bắc nói chung. VPID luôn nỗ lực để hỗ trợ, tạo điều kiện tối đa cho khách hàng, doanh nghiệp thuê đất sản xuất, nắm bắt cơ hội không ngừng mở rộng quy mô, địa bàn và lĩnh vực kinh doanh. Tính đến hiện tại, ngoài KCN Khai Quang – Vĩnh Phúc (221,46ha); VPID đã và đang triển khai 02 KCN và CCN bao gồm: KCN Sông Lô II – Vĩnh Phúc (165,65ha); KCN Châu Sơn – Hà Nam (174,68 ha); CCN Hồng Đức – Hải Dương (75ha). Đội ngũ cán bộ quản lý, vận hành của VPID chuyên nghiệp, có bề dày kinh nghiệm về vận hành và quản lý các dự án đầu tư về hạ tầng, trong đó đặc biệt là hạ tầng KCN. VPID không ngừng đổi mới tư duy và hoàn thiện, nhằm xây dựng những KCN mang bản sắc riêng, với hạ tầng – dịch vụ đồng bộ chất lượng cao, môi trường KCN xanh – sạch – đẹp, đáp ứng các yêu cầu dù là khắt khe nhất của các nhà đầu tư đến từ các nước như Nhật Bản, Hàn Quốc và các nước Châu Âu. Ông Phạm Trung Kiên – Tổng Giám đốc VPID (bên trái) và ông Lê Huy Hoàng – Giám đốc Vietcombank Thanh Xuân ( bên phải) ký kết Thỏa thuận hợp tác toàn diện và Hợp đồng cấp tín dụng tài trợ dự án Khu công nghiệp Sông lô II trị giá 1.000 tỷ đồng Theo Thỏa thuận Hợp tác đã ký kết, hai bên cam kết duy trì hợp tác toàn diện, lâu dài, có hiệu quả và cùng có lợi trong khuôn khổ pháp luật Nhà nước Cộng hoà Xã hội Chủ nghĩa Việt Nam trên các lĩnh vực bao gồm: Sản phẩm, dịch vụ quản lý tiền tệ; Sản phẩm, dịch vụ tín dụng với cam kết cấp tín dụng cho các dự án mà VPID sẽ triển khai với tổng quy mô 1.450 tỷ đồng, trong đó có Dự án đầu tư hạ tầng khu công nghiệp Sông Lô 2 trị giá 1.000 tỷ đồng; Hợp tác cung cấp dịch vụ cho các doanh nghiệp/ nhà đầu tư thứ cấp thuê đất tại Khu công nghiệp… Ông Lê Quang Vinh, Phó Tổng Giám đốc Vietcombank phát biểu tại buổi lễ Phát biểu tại buổi lễ, ông Lê Quang Vinh, Phó Tổng Giám đốc Vietcombank bày tỏ tin tưởng Lễ ký kết thỏa thuận hợp tác toàn diện là một dấu mốc quan trọng và một sự khởi đầu mới tốt đẹp, tạo tiền đề và định hướng cho mối quan hệ hợp tác kinh doanh ngày càng bền chặt giữa VPID và Vietcombank, trên tinh thần hợp tác hiệu quả giữa các bên. Ông Trịnh Việt Dũng, Chủ tịch HĐQT VPID phát biểu tại buổi lễ. Ông Trịnh Việt Dũng – Chủ tịch Hội đồng quản trị VPID đã bày tỏ lời cảm ơn tới Ban lãnh đạo Vietcombank và đánh giá sự kiện ngày hôm nay có ý nghĩa quan trọng đối với VPID, đồng thời cho biết: Thoả thuận hợp tác toàn diện và Hợp đồng tín dụng tài trợ cho Dự án Khu công nghiệp Sông Lô II được ký kết là kết quả của những nỗ lực không ngừng từ cả hai bên thời gian vừa qua, làm tiền đề cho những bước hợp tác, phát triển giữa hai bên trong thời gian tới.




